Pilhas > Comando > GP 23A - ibercell.com
قیمت شارژر پرو وان ProOne PCG11 اصلی
Българска интериорна врата P11 | ФЕНИКС КОРЕКТ
Модель 1-11п
КРИОПЕРЕНОС (1-11дпп) Поддержка.Симптомы.Тесты....
PG11 - Optronics Technology
Прибор измерительный цифровой ПКЦ-1101 - Схемы ...
P11
ТИП 3П4Н - Музей электронных раритетов
Кабельный ввод PG 11 со спиралью серый
گلند pg11 فلزی کابل پلاستیکی - محصولات گلند کاب...
2.4.3. Проверка системы ппо с помощью прибора п...
Ночные прицелы 1ПН110 и 1ПН113
Музей электронных раритетов - Пассив - Переключ...
Переключатели | Скупка радиодеталей и радиолома
С любопытством:: nikolaj_s — LiveJournal
Пин на доске пиф-паф
ПГК-11П1Н переключатель галетный с керамическим...
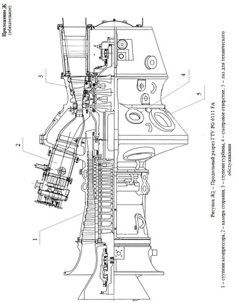
Приложение Ж
Тендер-конденсатор П11 | это... Что такое Тенде...
Переключатели галетные ПГК – AS ENERGI
Галетный Переключатель ПГК-11П3Н-6-А
Кабельний ввід PG-11
ЭЛЕКТРОМАГНИТНЫЙ ПРИВОД ПЭ - 11
20161204_gpk_11 - презентация онлайн
Приобрёл п 11 — DRIVE2
Heckler & Koch P11 Heckler & Koch GMG Оружие Ог...
Горен шкаф ъглов с витрина модул PG 11
ГРУППА П-11 - YouTube
100-N11P-GS-A1-N11P-GE-A1-N11P-GT-A1-N11P-GV-A1...